Банька 6х8

Страницы: 1 2 3  ОТВЕТИТЬ НОВАЯ ТЕМА
кирдыкбандер 27 янв 2016 в 15:42
Хохмач  •  На сайте 11 лет
0
ну и нах
HomerJay 27 янв 2016 в 15:45
Ярила  •  На сайте 11 лет
0
Цитата (Неунывающий @ 27.01.2016 - 15:36)
Цитата (Sergeyсержан @ 27.01.2016 - 14:18)
В фундаменте для продува должны быть окошки.
Я в своё время не оставил, через 6 лет полы и нижний венец менял,
грибок сожрал...

под терассой сделал 2 из 110 трубы канализационной, но мало для 24 м2 прийдется еще сверлить

Добавлено в 15:38
Цитата (HomerJay @ 27.01.2016 - 15:36)
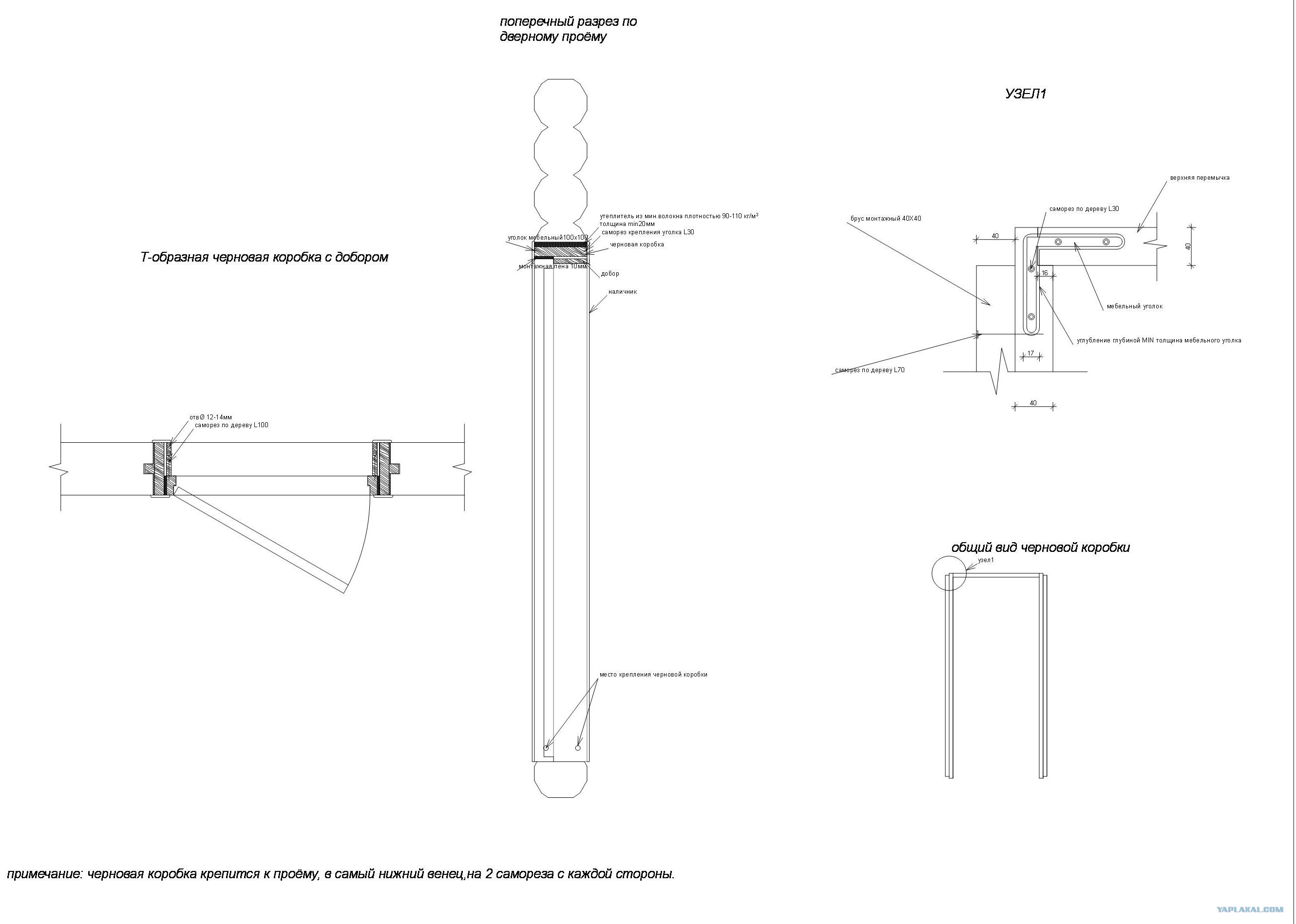
Не увидел в проемах под окна, т.н. окосячки или по простому черновой коробки. Сначала ставится она, а потом уже в нее сам оконный блок/дверной блок.

в проеме пилится паз и делается скрытая окосячка, не помню как по правильному называется

Так у Вас ее (окосячки) попросту нет или она в белый цвет выкрашена?

Банька 6х8
кирдыкбандер 27 янв 2016 в 15:45
Хохмач  •  На сайте 11 лет
-1
ну и нах такая громадина?
Avelron 27 янв 2016 в 15:54
Шутник  •  На сайте 10 лет
0
Хорошая банька с хорошей такой комнатой отдыха, парилкой и душевой.
Единственное не ясно есть ли там тамбур или с улицы прямо в комнату отдыха попадаешь? Есть план бани?
Неунывающий автор 27 янв 2016 в 16:03
Шутник  •  На сайте 12 лет
0
Цитата (Avelron @ 27.01.2016 - 15:54)
Хорошая банька с хорошей такой комнатой отдыха, парилкой и душевой.
Единственное не ясно есть ли там тамбур или с улицы прямо в комнату отдыха попадаешь? Есть план бани?

Тамбур прийдется достраивать, на начальном этапе не продумал
750sf 27 янв 2016 в 16:09
Шутник  •  На сайте 12 лет
0
Цитата (Bogorodsky @ 27.01.2016 - 17:45)
Как нарисовать сову?

Залил фундамент, а потом уже и крышу покрыл. Всего и делов.

Добавлено в 16:11
Сколько дерева куплено было? Поделись, пожалуйста.
KGB 27 янв 2016 в 16:14
Приколист  •  На сайте 16 лет
1
планировку, с размерами, можете скинуть?
ХуанДон 27 янв 2016 в 16:44
Балагур  •  На сайте 11 лет
7
Разве это баня? Вот баня, так баня.. biggrin.gif


Банька 6х8
xapekdt 27 янв 2016 в 16:46
Шутник  •  На сайте 11 лет
2
Тут походу баня соседская, а он внутрь не пускает, вот фоток изнутри и нет...
DenBonGo 27 янв 2016 в 16:49
Весельчак  •  На сайте 10 лет
0
Да какая это баня?! Это ж целый домище!!) Красава, мужик. Тоже захотелось, прям, чего-нибудь построить.
langreo 27 янв 2016 в 17:08
Весельчак  •  На сайте 17 лет
0
Сам летом продолжу стройку бани. Есть вопрос - как устроен слив воды из парной или она только для пара без возможности там лить воду(рядом маленькая душевая)?

Это сообщение отредактировал langreo - 27 янв 2016 в 17:08
eX1stenZ 27 янв 2016 в 17:42
Ярила  •  На сайте 14 лет
1
Хорошая Банька..
Березовых веников по больше навешай в бане , запах березы и смолы в бане это блаженство
sanysey 27 янв 2016 в 19:28
Ярила  •  На сайте 10 лет
0
Я решил с баней не заморачиваться и когда делал пристройку к дому под туалет, там же разместил парную.
CheerFuL 27 янв 2016 в 19:35
Хохмач  •  На сайте 17 лет
1
Очень информативно faceoff.gif
Владимир12345 28 янв 2016 в 00:02
Ярила  •  На сайте 15 лет
0
Цитата (Bogorodsky @ 27.01.2016 - 13:45)
Как нарисовать сову?

А спорим, что ТС не хозяин бани?! dont.gif Не вижу че то фоток процесса и внутрянки. Такая же фигня и в этой теме. Лишь бы выложить и Юкки нарубить.
http://www.yaplakal.com/forum2/topic1300295.html
Хитрецы,мля dont.gif
Zatochka1385 28 янв 2016 в 00:08
Ярила  •  На сайте 11 лет
0
По сути пост ниочём! Залил, привезли, собрал, зацените. Что как, почём? НИОЧЁМ!
chernigov 28 янв 2016 в 00:29
UA  •  На сайте 13 лет
0
окна в три ряда - это улёт...

Это сообщение отредактировал chernigov - 28 янв 2016 в 00:30
kranig 28 янв 2016 в 01:02
Балагур  •  На сайте 14 лет
1
Цитата (Элефант71 @ 27.01.2016 - 13:48)
Цитата (Неунывающий @ 27.01.2016 - 16:43)
и крайняя

последняя, блять!

присаживайтесь!
Элефант71 28 янв 2016 в 05:58
Балагур  •  На сайте 11 лет
0
Цитата (kranig @ 28.01.2016 - 04:02)
Цитата (Элефант71 @ 27.01.2016 - 13:48)
Цитата (Неунывающий @ 27.01.2016 - 16:43)
и крайняя

последняя, блять!

присаживайтесь!

садитесь lol.gif
MJH 28 янв 2016 в 06:03
*****  •  На сайте 10 лет
-1
Неунывающий
Бревно 8м цельное?
Если нет,то как сращивали?
Можно план помещений
Ромусик 28 янв 2016 в 12:24
Ярила  •  На сайте 12 лет
0
Молодец, только фот явно не хватает. Ни то как складывали, ни того что внутри. Большое окошко понравилось. Больше сказать ничего не могу, ибо ничего не видно )
Dfytr 28 янв 2016 в 12:29
Приколист  •  На сайте 11 лет
0
И чё по деньгам получилось тоже хочется узнать!
Vakula77 28 янв 2016 в 14:21
Приколист  •  На сайте 10 лет
0
От баньки б я не отказался)))
Понравился пост? Ещё больше интересного в ЯП-Телеграм и ЯП-Max!
Только зарегистрированные и авторизованные пользователи могут оставлять комментарии. Авторизуйтесь, пожалуйста, или зарегистрируйтесь, если не зарегистрированы.
1 Пользователей читают эту тему (1 Гостей и 0 Скрытых Пользователей) Просмотры темы: 34 937
0 Пользователей:
Страницы: 1 2 3  ОТВЕТИТЬ НОВАЯ ТЕМА

 
 

Активные темы



Наверх